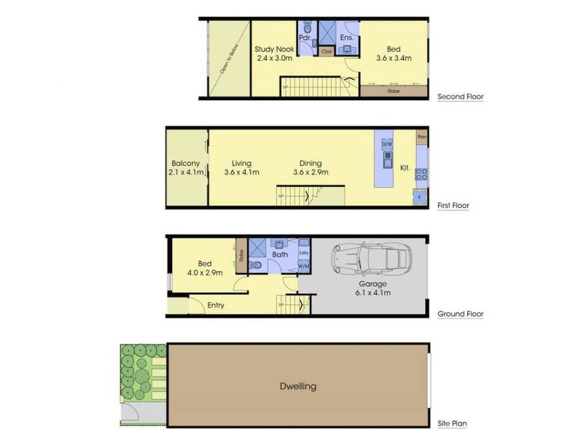
2Bedroom+1Study Terrace Townhouse Available in Cheltenham Now!!!
This Wonderful 3 LEVEL terrace townhouse, perfect for small size family.
The top level provides a second bedroom (with BIR and an ensuite) plus a sun-lit study.split system air conditioning, a built in single lock up garage with internal access and rear entrance from Poppy Lane, a European laundry, ample storage space and private parking.
In the heart of the in-demand Cheltenham Secondary College Zone just a minute from Southland and Waves Pool and Gym, this is where all new ease meets affordable prestige!
For all enquires please contact Daisy Chen 0451 898 177
- Split-System Air Conditioning
- Balcony
- Remote Garage
- Fully Fenced
- Built-in Wardrobes
- Dishwasher
- Study
















